KASPAR STANSCHUS
CANVAS GRID
DE EN
CENTER
Legal / Contact

Minimal Living | Kaspar Stanschus

Portfolio-Projekt: Minimal Living von Kaspar Stanschus.

Coverbild für Minimal Living
Minimal Living
In unserem Entwurfsprojekt „Minimal Living“ in Cottbus haben wir neue Wohnkonzepte entwickelt, die auf Raumknappheit und den Klimawandel reagieren. Der Entwurf hinterfragt kritisch: Wie viel Platz braucht der Mensch wirklich? Das Ergebnis ist ein Studentenwohnheim, das durch ein flexibles Betontragwerk mit nicht tragenden Trennwänden maximale Anpassungsfähigkeit und die spätere Zusammenlegung von Wohnungen ermöglicht – ein Hybrid aus Effizienz durch Fertigteilbau und Lebensqualität. Besonders prägend ist die markante Abtreppung zur Südseite, die großzügige, lebendige Terrassen als soziale Ebenen schafft. Ergänzt durch kommunikative Laubengänge und vielfältige Gemeinschaftsorte, fördert das Gebäude die soziale Interaktion und schont gleichzeitig wertvolle Ressourcen für ein zukunftsfähiges Wohnen.
Diagramm der Fensterproportionen (5,6m×2,8m) basierend auf dem Goldenen Schnitt und einer Drittel-Zonierung.

This diagram analyzes the mathematical precision of the residential facade. The module has a total width of 5.6m (matching the axis of a living unit) and a clear height of 2.8m. The design follows a strict tripartite rule: the surface is divided into 1/3 to 2/3 segments both horizontally and vertically. The lower third (0.93m) acts as a visual filter or parapet area (dotted texture), while the upper two-thirds provide maximum transparency. The reference to the Golden Ratio (1/Φ) in the dimension chain emphasizes the intent to create a timeless and calm facade rhythm through classical proportions, projecting high architectural value despite minimal means.

Dieses Diagramm analysiert die mathematische Präzision der Wohnfassade. Das Modul besitzt eine Gesamtbreite von 5,6m (entspricht der Achse einer Wohneinheit) und eine lichte Höhe von 2,8m. Die Gestaltung folgt einer strengen Drittel-Regelung: Sowohl horizontal als auch vertikal ist die Fläche in 1/3 zu 2/3 Segmente unterteilt. Das untere Drittel (0,93m) fungiert als optischer Filter oder Brüstungsbereich (punktierte Textur), während die oberen zwei Drittel maximale Transparenz bieten. Die Erwähnung des Goldenen Schnitts (1/Φ) in der Bemaßungskette unterstreicht den Anspruch, durch klassische Proportionslehre eine zeitlose und beruhigte Fassadenrhythmik zu erzeugen, die trotz minimaler Mittel eine hohe architektonische Wertigkeit ausstrahlt.

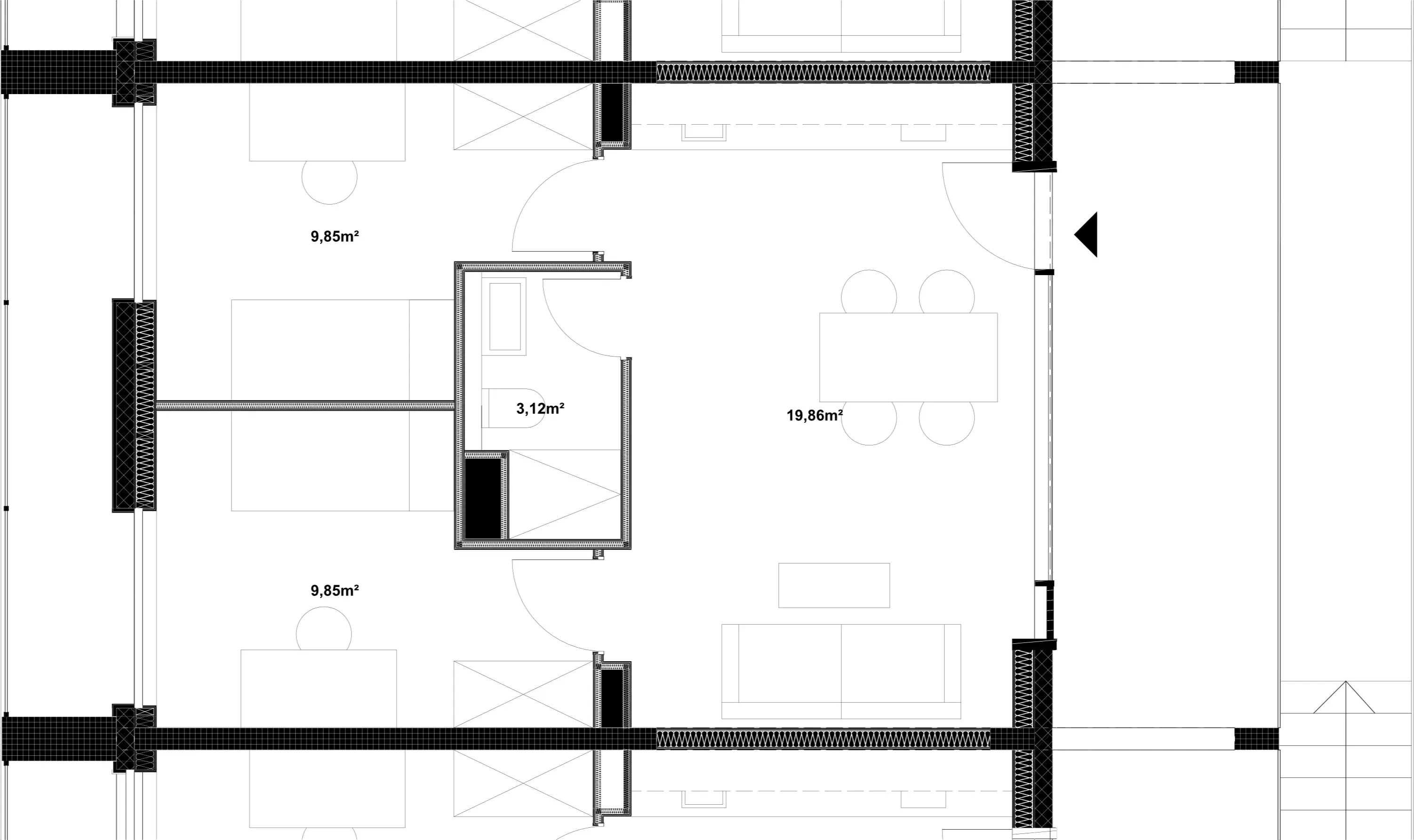
Detaillierter Wohnungsgrundriss 1:50 mit zwei Individualräumen , einer zentralen Nasszelle  und großem Wohnbereich .

This technical floor plan documents the design's spatial efficiency. Within a total area of just over 40m2, two symmetrical rooms for sleeping or working (9.85m2 each) and a generous living and dining area (19.86m2) are accommodated. The functional center is the minimized wet cell (3.12m2), compactly combining toilet and shower. Prominent, black-hatched cross-walls indicate the load-bearing structure, while the furniture layout—including closets, beds, and a dining table—emphasizes the scale and usability of the "Minimal Living" philosophy.

Dieser technische Grundriss dokumentiert die Flächeneffizienz des Entwurfs. Auf einer Gesamtfläche von knapp über 40m2 sind zwei symmetrische Zimmer für Schlafen oder Arbeiten (je 9,85m2) und ein großzügiger Wohn- und Essbereich (19,86m2) untergebracht. Das funktionale Zentrum bildet die minimierte Nasszelle (3,12m2), die kompakt Toilette und Dusche vereint. Markante, schwarz schraffierte Querwände deuten die tragende Struktur an, während die Möblierung mit Schränken, Betten und Esstisch die Maßstäblichkeit und Nutzbarkeit des „Minimal Living“-Gedankens unterstreicht.

Die nicht tragenden Ausfachungen innerhalb der Betonfertigteile bilden eine intelligente Schnittstelle zur flexiblen Koppelung der Wohneinheiten.

Innenansicht einer 40m²-Wohnung: Minimalistische dunkle Küche, Sichtbetonwände und fließender Übergang zum Balkon.

Diese Visualisierung verdeutlicht die Atmosphäre der Suffizienz. In der 40m²-Einheit kontrastieren dunkle Holzfronten mit rauen Betonoberflächen. Die architektonische Entscheidung, private Räume (Bad/Schlafzimmer) zu minimieren, ermöglicht diesen großzügigen, loftartigen Wohn-Ess-Bereich. Das Lichtkonzept mit indirekten LED-Bändern betont die Horizontale und lässt den Raum größer wirken. Die raumhohe Verglasung löst die Grenze zum Laubengang auf und integriert den Außenraum als erweitertes Wohnzimmer.

This visualization illustrates the atmosphere of sufficiency. In the 40m² unit, dark wood fronts contrast with raw concrete surfaces. The architectural decision to minimize private rooms (bathroom/bedroom) allows for this generous, loft-like living-dining area. The lighting concept with indirect LED strips emphasizes the horizontal and makes the space appear larger. Floor-to-ceiling glazing dissolves the boundary to the access gallery, integrating the outdoor space as an extended living room.

Innenraum: Spiralförmige Betonrampe für Fahrräder in einem Lichthof mit Baum und linearer LED-Beleuchtung.

Diese Visualisierung zeigt die funktionale Basis des Gebäudes, die als zentraler Mobilitäts-Hub und barrierefreie Erschließungszone dient. Der Raum wird durch eine radikale Materialehrlichkeit aus Sichtbeton definiert. Im Zentrum steht eine großzügig geschwungene Betonrampe, die einen fließenden Übergang für Fahrräder zwischen den Geschossen schafft. Ein architektonisches Highlight ist der Lichthof, in dem ein Baum aus einem Kiesbett wächst und natürliches Licht sowie Vegetation in den Kern des Gebäudes bringt. Lineare LED-Lichtbänder an den Unterkanten der Deckenplatten betonen die horizontale Schichtung des Betonskeletts und verleihen dem massiven Raum eine dynamische, zukunftsweisende Atmosphäre.

This visualization showcases the building's functional foundation, serving as a central mobility hub and barrier-free circulation zone. The space is defined by a radical material honesty of exposed concrete. At its center is a generously curved concrete ramp, creating a fluid transition for bicycles between different floor levels. An architectural centerpiece is the light well, where a tree grows from a gravel bed, integrating natural light and vegetation into the building's core. Linear LED strip lights along the soffits of the floor slabs emphasize the horizontal layering of the concrete skeleton, giving the massive space a dynamic and forward-looking atmosphere.

EG-Grundriss: Sozialer Hub mit Café, Werkstätten und Innenhof mit 45cm hohen Beton-Sitztreppen sowie Fahrradrampe in den Keller.
Grundriss EG

This floor plan documents the ground floor as a communicative center and logistical hub. The spacious courtyard is structured by sculptural, 45cm high concrete blocks that serve a dual purpose: they act as robust seating stairs for outdoor lounging while simultaneously housing integrated landscape zones with tree plantings. A key element is the circulation block in the courtyard, which directs the bicycle stairs straight into the basement, creating a seamless connection to the mobility hub. Surrounding this core are synergetic uses such as the café, flexible workspaces, a library, and a workshop, all of which activate the "Open Ground" for the urban community.

Dieser Grundriss dokumentiert das Erdgeschoss als kommunikatives Zentrum und logistischen Knotenpunkt. Der großzügige Innenhof wird durch skulpturale, 45 cm hohe Betonblöcke strukturiert, die eine doppelte Funktion erfüllen: Sie dienen als robuste Sitztreppen für den Aufenthalt im Freien und beherbergen gleichzeitig integrierte Landschaftsbereiche mit Baumbepflanzung. Ein zentrales Element ist der Erschließungsblock im Hof, der die Fahrradtreppe direkt in das Kellergeschoss führt und so eine nahtlose Verbindung zum Mobility-Hub herstellt. Um diesen Kern gruppieren sich synergetische Nutzungen wie das Café, flexible Arbeitsräume, eine Bibliothek und eine Werkstatt, die den „Open Ground“ für die Stadtgesellschaft aktivieren.

2.OG-Grundriss: Flexible 40m²-Wohnungen mit Laubengang und großzügigen, abgetreppten Gemeinschaftsterrassen.
Grundriss 2.OG

The second-floor plan illustrates the "Minimal Living" concept: modular 40m² apartments offer a surprisingly generous living area by reducing private secondary spaces (minimal bathrooms and bedrooms). Access is provided via a north-facing gallery that serves as an extended living space. At the southern end of the building are extensive steps that function as communal terraces. Featuring small tea kitchens as well as covered and open zones, these areas offer an extremely high quality of life and promote outdoor community.

Der Grundriss des 2. Obergeschosses illustriert das Konzept des "Minimal Living": Modulare 40m²-Wohnungen bieten durch die Reduktion privater Nebenräume (minimale Bäder und Schlafzimmer) einen überraschend großzügigen Wohnbereich. Die Erschließung erfolgt über einen nordseitigen Laubengang, der als erweiterter Wohnraum dient. Am südlichen Ende des Gebäudes befinden sich weitläufige Abtreppungen, die als Gemeinschaftsterrassen fungieren. Diese bieten mit kleinen Teeküchen sowie überdachten und offenen Zonen eine extrem hohe Lebensqualität und fördern die Gemeinschaft im Freien.

DG-Grundriss: Rooftop-Bar mit 360-Grad-Panorama, zentralem Serviceblock und vielfältigen Sitzlandschaften.
Grundriss DG
Der Grundriss des Dachgeschosses zeigt die öffentliche Krone des Gebäudes. Eine weitläufige Dachterrasse bietet einen 360-Grad-Blick über Cottbus. Im Zentrum steht ein kompakter schwarzer Serviceblock, der die Bar und notwendige Infrastruktur beherbergt. Die umlaufende Fläche ist mit verschiedensten Sitzmöglichkeiten – von fest installierten Bänken bis zu losen Lounge-Möbeln – ausgestattet, was das Dach zu einem vielseitigen Ziel für Bewohner und Gäste macht.

Minimal Living | Kaspar Stanschus

Portfolio project: Minimal Living by Kaspar Stanschus.

Cover image for Minimal Living
Minimal Living
In our design project "Minimal Living" in Cottbus, we developed new housing concepts responding to space scarcity and climate change. The design critically asks: How much space does a person really need? The result is a student residence featuring a flexible concrete skeleton with non-load-bearing partitions, allowing for maximum adaptability and the future merging of units—a hybrid of efficiency through Prefabricationand high living quality. A defining feature is the stepped southern facade, creating spacious, vibrant terraces that serve as social hubs. Complemented by communicative access galleries and diverse shared spaces, the building fosters social interaction while preserving vital resources for a future-oriented lifestyle.
Diagram of window proportions (5.6m×2.8m) based on the Golden Ratio and a tripartite zoning principle.

This diagram analyzes the mathematical precision of the residential facade. The module has a total width of 5.6m (matching the axis of a living unit) and a clear height of 2.8m. The design follows a strict tripartite rule: the surface is divided into 1/3 to 2/3 segments both horizontally and vertically. The lower third (0.93m) acts as a visual filter or parapet area (dotted texture), while the upper two-thirds provide maximum transparency. The reference to the Golden Ratio (1/Φ) in the dimension chain emphasizes the intent to create a timeless and calm facade rhythm through classical proportions, projecting high architectural value despite minimal means.

Dieses Diagramm analysiert die mathematische Präzision der Wohnfassade. Das Modul besitzt eine Gesamtbreite von 5,6m (entspricht der Achse einer Wohneinheit) und eine lichte Höhe von 2,8m. Die Gestaltung folgt einer strengen Drittel-Regelung: Sowohl horizontal als auch vertikal ist die Fläche in 1/3 zu 2/3 Segmente unterteilt. Das untere Drittel (0,93m) fungiert als optischer Filter oder Brüstungsbereich (punktierte Textur), während die oberen zwei Drittel maximale Transparenz bieten. Die Erwähnung des Goldenen Schnitts (1/Φ) in der Bemaßungskette unterstreicht den Anspruch, durch klassische Proportionslehre eine zeitlose und beruhigte Fassadenrhythmik zu erzeugen, die trotz minimaler Mittel eine hohe architektonische Wertigkeit ausstrahlt.

Detailed 1:50 apartment floor plan with two private rooms , a central wet cell , and a large living area .

This technical floor plan documents the design's spatial efficiency. Within a total area of just over 40m2, two symmetrical rooms for sleeping or working (9.85m2 each) and a generous living and dining area (19.86m2) are accommodated. The functional center is the minimized wet cell (3.12m2), compactly combining toilet and shower. Prominent, black-hatched cross-walls indicate the load-bearing structure, while the furniture layout—including closets, beds, and a dining table—emphasizes the scale and usability of the "Minimal Living" philosophy.

Dieser technische Grundriss dokumentiert die Flächeneffizienz des Entwurfs. Auf einer Gesamtfläche von knapp über 40m2 sind zwei symmetrische Zimmer für Schlafen oder Arbeiten (je 9,85m2) und ein großzügiger Wohn- und Essbereich (19,86m2) untergebracht. Das funktionale Zentrum bildet die minimierte Nasszelle (3,12m2), die kompakt Toilette und Dusche vereint. Markante, schwarz schraffierte Querwände deuten die tragende Struktur an, während die Möblierung mit Schränken, Betten und Esstisch die Maßstäblichkeit und Nutzbarkeit des „Minimal Living“-Gedankens unterstreicht.

Non-load-bearing infills within the precast concrete elements provide a versatile interface for the seamless coupling of apartments.

Interior view of a 40m² apartment: Minimalist dark kitchen, exposed concrete walls, and seamless transition to the balcony.

Diese Visualisierung verdeutlicht die Atmosphäre der Suffizienz. In der 40m²-Einheit kontrastieren dunkle Holzfronten mit rauen Betonoberflächen. Die architektonische Entscheidung, private Räume (Bad/Schlafzimmer) zu minimieren, ermöglicht diesen großzügigen, loftartigen Wohn-Ess-Bereich. Das Lichtkonzept mit indirekten LED-Bändern betont die Horizontale und lässt den Raum größer wirken. Die raumhohe Verglasung löst die Grenze zum Laubengang auf und integriert den Außenraum als erweitertes Wohnzimmer.

This visualization illustrates the atmosphere of sufficiency. In the 40m² unit, dark wood fronts contrast with raw concrete surfaces. The architectural decision to minimize private rooms (bathroom/bedroom) allows for this generous, loft-like living-dining area. The lighting concept with indirect LED strips emphasizes the horizontal and makes the space appear larger. Floor-to-ceiling glazing dissolves the boundary to the access gallery, integrating the outdoor space as an extended living room.

Interior: Spiral concrete bike ramp in a light well featuring a tree and linear LED lighting.

Diese Visualisierung zeigt die funktionale Basis des Gebäudes, die als zentraler Mobilitäts-Hub und barrierefreie Erschließungszone dient. Der Raum wird durch eine radikale Materialehrlichkeit aus Sichtbeton definiert. Im Zentrum steht eine großzügig geschwungene Betonrampe, die einen fließenden Übergang für Fahrräder zwischen den Geschossen schafft. Ein architektonisches Highlight ist der Lichthof, in dem ein Baum aus einem Kiesbett wächst und natürliches Licht sowie Vegetation in den Kern des Gebäudes bringt. Lineare LED-Lichtbänder an den Unterkanten der Deckenplatten betonen die horizontale Schichtung des Betonskeletts und verleihen dem massiven Raum eine dynamische, zukunftsweisende Atmosphäre.

This visualization showcases the building's functional foundation, serving as a central mobility hub and barrier-free circulation zone. The space is defined by a radical material honesty of exposed concrete. At its center is a generously curved concrete ramp, creating a fluid transition for bicycles between different floor levels. An architectural centerpiece is the light well, where a tree grows from a gravel bed, integrating natural light and vegetation into the building's core. Linear LED strip lights along the soffits of the floor slabs emphasize the horizontal layering of the concrete skeleton, giving the massive space a dynamic and forward-looking atmosphere.

GF Plan: Social hub with café, workshops, and courtyard featuring 45cm high concrete seating blocks and a bike ramp to the basemen
Ground Floor Plan

This floor plan documents the ground floor as a communicative center and logistical hub. The spacious courtyard is structured by sculptural, 45cm high concrete blocks that serve a dual purpose: they act as robust seating stairs for outdoor lounging while simultaneously housing integrated landscape zones with tree plantings. A key element is the circulation block in the courtyard, which directs the bicycle stairs straight into the basement, creating a seamless connection to the mobility hub. Surrounding this core are synergetic uses such as the café, flexible workspaces, a library, and a workshop, all of which activate the "Open Ground" for the urban community.

Dieser Grundriss dokumentiert das Erdgeschoss als kommunikatives Zentrum und logistischen Knotenpunkt. Der großzügige Innenhof wird durch skulpturale, 45 cm hohe Betonblöcke strukturiert, die eine doppelte Funktion erfüllen: Sie dienen als robuste Sitztreppen für den Aufenthalt im Freien und beherbergen gleichzeitig integrierte Landschaftsbereiche mit Baumbepflanzung. Ein zentrales Element ist der Erschließungsblock im Hof, der die Fahrradtreppe direkt in das Kellergeschoss führt und so eine nahtlose Verbindung zum Mobility-Hub herstellt. Um diesen Kern gruppieren sich synergetische Nutzungen wie das Café, flexible Arbeitsräume, eine Bibliothek und eine Werkstatt, die den „Open Ground“ für die Stadtgesellschaft aktivieren.

2nd Floor Plan: Flexible 40m² apartments with access galleries and spacious, stepped communal terraces.
Second Floor Plan

The second-floor plan illustrates the "Minimal Living" concept: modular 40m² apartments offer a surprisingly generous living area by reducing private secondary spaces (minimal bathrooms and bedrooms). Access is provided via a north-facing gallery that serves as an extended living space. At the southern end of the building are extensive steps that function as communal terraces. Featuring small tea kitchens as well as covered and open zones, these areas offer an extremely high quality of life and promote outdoor community.

Der Grundriss des 2. Obergeschosses illustriert das Konzept des "Minimal Living": Modulare 40m²-Wohnungen bieten durch die Reduktion privater Nebenräume (minimale Bäder und Schlafzimmer) einen überraschend großzügigen Wohnbereich. Die Erschließung erfolgt über einen nordseitigen Laubengang, der als erweiterter Wohnraum dient. Am südlichen Ende des Gebäudes befinden sich weitläufige Abtreppungen, die als Gemeinschaftsterrassen fungieren. Diese bieten mit kleinen Teeküchen sowie überdachten und offenen Zonen eine extrem hohe Lebensqualität und fördern die Gemeinschaft im Freien.

Roof Plan: Rooftop bar with 360-degree panorama, central service block, and diverse seating landscapes.
Rooftop
The roof floor plan shows the public crown of the building. An expansive roof terrace offers a 360-degree view of Cottbus. At the center is a compact black service block housing the bar and necessary infrastructure. The surrounding area is equipped with various seating options—from fixed benches to loose lounge furniture—making the roof a versatile destination for residents and guests alike

Minimal Living

Minimal Living